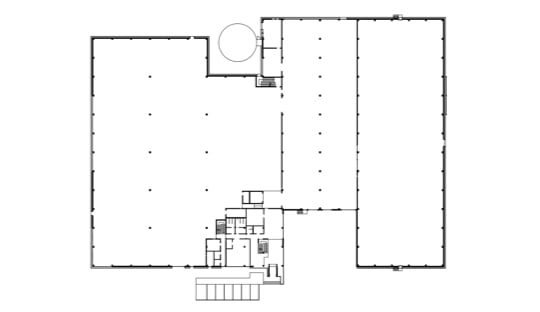
Grundriss
Der Grundriss zeigt 3 Gebäudeteile in verschiedenen Höhen mit Foyer und Verwaltungstrakt.
Klar unterscheiden sich die Hallen durch ihre Funktionen. Das Eingangsfoyer ist die Verbindung zu allen Bereichen.
Neubau einer Produktions- und Lagerhalle mit Verwaltungstrakt.
Der Grundriss zeigt 3 Gebäudeteile in verschiedenen Höhen mit Foyer und Verwaltungstrakt.
Klar unterscheiden sich die Hallen durch ihre Funktionen. Das Eingangsfoyer ist die Verbindung zu allen Bereichen.
Der repräsentative Eingangsbereich befindet sich in der Mitte von zwei Hallen und wird durch die Farbigkeit sowie die Transparenz besonders hervorgehoben. Horizontale Lamellen schützen vor Sonneneinstrahlung.
Das Foyer ist das Herzstück des gesamten Ensembles und verbindet alle Bereiche vertikal und horizontal. Beeindruckend – wie eine Skulptur – befindet sich hier die freie Treppe. Die Farbigkeit der Fassade führt zu spannenden Lichtreflexionen im Innern und erinnert an die Corporate Identity des Bauherrn.
Die höchste Halle wurde mit einem Schieberegal ausgestattet. Die Herausforderung war hier, die beweglichen Regale mit einem Sprinklersystem auszustatten, das sich zusammen mit den Regalen bewegt.
Der Verwaltungstrakt befindet sich neben dem Eingangsbereich und ist über das Foyer erreichbar. Hier befinden sich Büros, Besprechungszimmer, Aufenthaltsräume und Ausstellungsflächen.