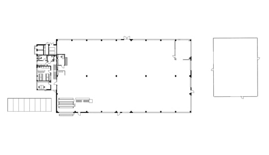
Grundriss
Im Nordwesten der großen Dreherei befindet sich der zweigeschossige Bereich für die Mitarbeiter, der optisch durch eine Glasfassade klar von der Produktionshalle getrennt ist.
Neubau einer Dreherei mit Bohrwerk und angeschlossenem Sozialtrakt.
Im Nordwesten der großen Dreherei befindet sich der zweigeschossige Bereich für die Mitarbeiter, der optisch durch eine Glasfassade klar von der Produktionshalle getrennt ist.
Große und helle Produktionsflächen ermöglichen effiziente Abläufe und schaffen hervorragende Arbeitsbedingungen. Eine Krananlage, deren Schienen entlang den Oberlichtern laufen, bedient die gesamte Halle.
Die vertikale Erschließung durch die gerade verlaufende Treppe verbindet Produktions- und Sozialfläche. Auf der rechten Seite gelangt man direkt in die Produktionshalle. Auf der linken Seite befinden sich die Mitarbeiterräume.
Aufenthalts-, Besprechungs- und Sozialräume, sowie das Meisterbüro sind in dem abgesetzten Personaltrakt angeordnet.
Die Stahlbeton-Fertigbauweise ermöglicht eine schnelle passgenaue Ausführung auf der Baustelle. Große Oberlichtbänder in der Halle sorgen für viel Tageslicht.