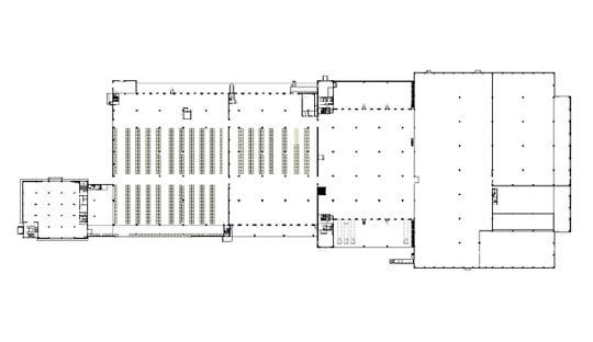
Grundriss
Das Verwaltungsgebäude mit dem prägnanten Eingang und der Ausstellungsfläche bildet den Kopf des neuen Ensembles. Die verschiedenen Lager- und Logistikhallen schließen lückenlos an und ermöglichen den direkten Austausch.
Neubau von einem großen Logistikkomplex mit Verwaltungs- und Ausstellungsgebäude.
Das Verwaltungsgebäude mit dem prägnanten Eingang und der Ausstellungsfläche bildet den Kopf des neuen Ensembles. Die verschiedenen Lager- und Logistikhallen schließen lückenlos an und ermöglichen den direkten Austausch.
Am Abend leuchtet der Glaskubus, die vertikale Verkehrsfläche des Gebäudes, von Weitem.
Eingebettet im Verwaltungstrakt mit dem Fachmarkt, den Ausstellungsbereichen, den Schulungsräumen und einer Dachterrasse befindet er sich an der Spitze des gesamten Ensembles.
Die Herausforderung war, das Verwaltungsgebäude mit der ca. 350 m langen Fassade der Lagerhallen zu verbinden. Das durchgehende Fensterband sorgt für gute Belichtung in den Hallen und bildet den Bezug zum Verwaltungsgebäude.
Im gesamten Gebäude werden hochwertige Materialien eingesetzt. Technikinstallationen sind sichtbar ausgeführt und bilden einen starken Kontrast zur eleganten Empfangstheke, die vom internen Design-Team entwickelt wurde.
Der Gebäudekomplex umfasst verschiedene Hallen mit unterschiedlichen Funktionen wie z.B. Hochregallager, Wabenregallager und Langgutregallager. Die Palette der Produkte reicht von Abwasserrohren bis hin zu Designer-Porzellan-Badewannen. Eine Krananlage erstreckt sich über die gesamte Länge der Halle.