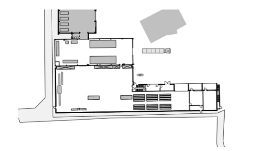
Grundriss
Der zweite BA schließt im Süden an eine bestehende Halle an. Der östliche Teil der Produktionshalle ist relativ schmal gehalten, damit genug Platz für die Anlieferung der Rohmaterialien bleibt.
Neubau einer Produktionshalle mit Verwaltungstrakt als 2. Bauabschnitt.
Der zweite BA schließt im Süden an eine bestehende Halle an. Der östliche Teil der Produktionshalle ist relativ schmal gehalten, damit genug Platz für die Anlieferung der Rohmaterialien bleibt.
Die Fassade besticht durch ihre helle Farbe sowie ihrer klaren Struktur und den angenehmen Proportionen von offenen und geschlossenen Bereichen.
Klares Design der Räume ergänzt durch Kunst/Grafik an den Wänden und kombiniert mit wertigen Materialien bestimmen das Innere des Gebäudes.
Die Mitarbeiterräume sind im 1. OG angeordnet. Ein Raumteiler aus Massivholz zoniert den Verzehrbereich und den Mitarbeiter-Besprechungsraum. Ausgesuchte, hochwertige Materialen sowie exquisite Beleuchtung sorgen für einen angenehmen Aufenthalt.
Ein großzügiger, ansprechender Mitarbeiter-Terrassenbereich mit dem Blick ins Grüne befindet sich im 1. OG.